SHOP-IN-SHOP DESIGN
Designed Lindt Chocolate shop-in-shop at Macy's Herald Square, NYC.
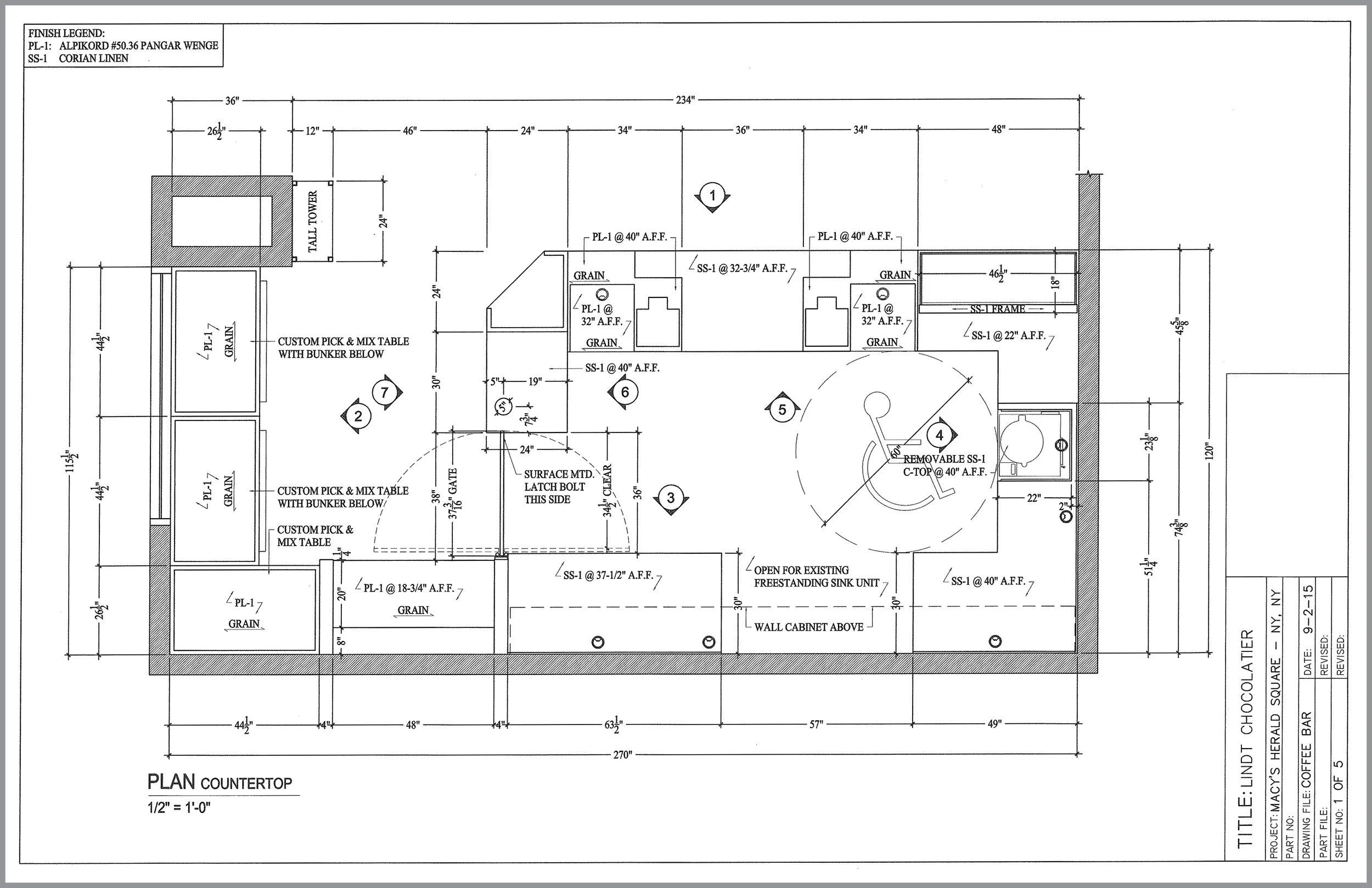
Project parameters included need for a chocolate/coffee drinks counter, chocolate bark display case and small shopping area for packaged gifts and bulk chocolate display table. Finishes were aligned with current Lindt Global Retail standards. Space was approx. 22' wide x 10' deep.



FLOORPLAN
ORIGINAL SKETCHES